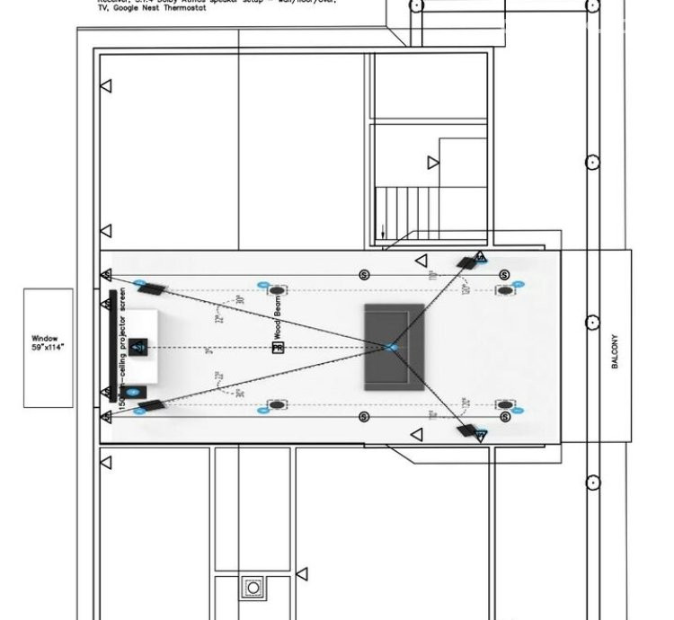
Audio/Video installation and integration
| Shipping Cost |
|
| Shipping | Muskoka Lakes Local Delivery 1 Business Day |
| Product Location | Utterson - Muskoka Lakes, Ontario, Canada |
